Trilocale in vendita

Airasca, Via Nino Costa
€ 69.000
3 locali 3 locali
80 Mq 80 Mq
1 bagno 1 bagno

Trilocale in vendita

Airasca, Via Nino Costa

Descrizione annuncio

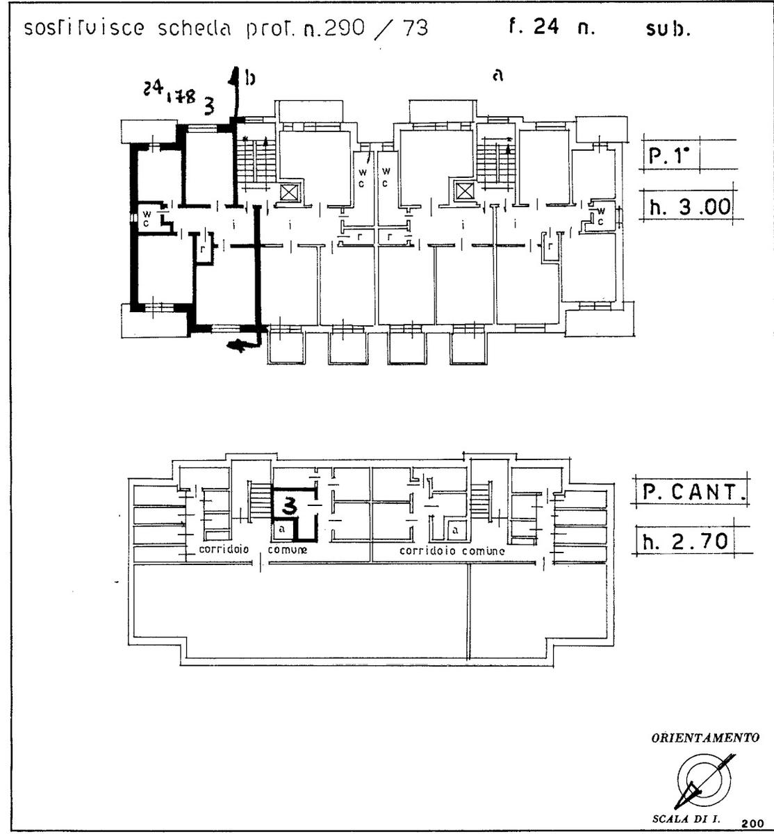
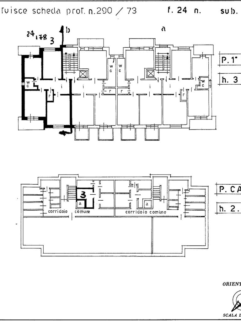
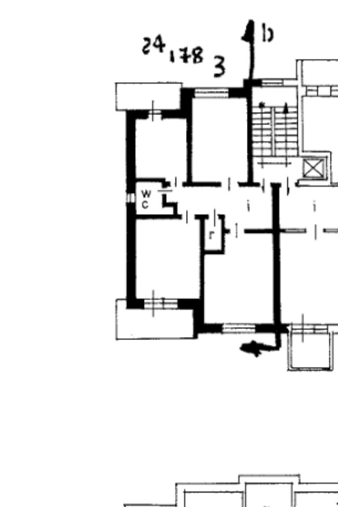
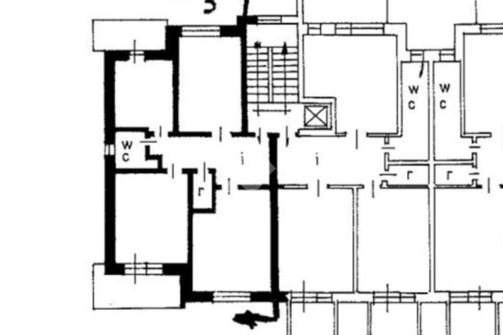
L'alloggio, è al piano primo in palazzina con ascensore, con affaccio su due balconi. Alcune piccole accortezze nella suddivisione degli spazi interni hanno reso la zona giorno e l'ingresso più luminosi e maggiormente vivibili. Gli infissi esterni e le tapparelle sono stai sostituiti e sono presenti zanzariere sulle finestre. L'ingresso infatti ora si unisce al soggiorno con zona cottura a vista dando una maggiore spaziosità. Importante è la presenza del ripostiglio, locale sempre utile e camere da letto sono due, una con finestra, l'altra con affaccio su balcone. Le spese di condominio sono contenute ed essendoci il riscaldamento autonomo con caldaia a condensazione, la casa ha una buona sostenibilità delle spese sui consumi.

Mostra tutto

Nelle vicinanze

Trasporto pubblico Trasporto pubblico
Airasca
Airasca
1,6 Km
Airasca
Airasca
1,1 Km
Scalenghe, via Savigliani
Scalenghe, via Savigliani
2,5 Km
Scuole Scuole
Scuola Secondaria di 1° grado Statale
890 m
Scuola Primaria Statale "Dante Alighieri"
930 m
Farmacia Farmacia
Farmacia
720 m
Bar Bar
Bar Marghera
840 m
Mostra tutto

Caratteristiche

Rif.:
61066405
Piano:
1 di 5 con ascensore (Piano medio)
Balconi:
2
Camere da letto:
2
Arredamento:
Assente
Condizionamento:
Assente
Mostra tutto
Prezzo Prezzo
€ 69.000
Rata mutuo Rata mutuo
€ 325 / mese
Spese annue Spese annue
€ 774
Proponi il tuo prezzoProponi il tuo prezzo

Classe Energetica

D
D
D
D
D
D
D
D
D
EP globale non rinnovabile:
168.13 kW h/m² anno
EP globale rinnovabile:
2.82 kW h/m² anno
EP invernale del fabbricato:
EP estiva del fabbricato:
Anno di costruzione:
1960
Riscaldamento:
Autonomo
Tipo impianto:
A radiatori
Tipo alimentazione:
Metano

Ti interessa visionare l'immobile?

Fissa un appuntamento  Fissa un appuntamento

Richiedi informazioni

Clicca su Leggi per aprire l'informativa
* Questi campi sono obbligatori

Calcola il tuo mutuo

Semplice e senza impegno
Anticipo

( % )
Mutuo

( % )

pochi semplici passi

inserisci i tuoi dati
Questionario completato
Grazie per aver richiesto un appuntamento senza impegno con un nostro Consulente del Credito e Assicurativo.

Hai inserito correttamente tutti i dati necessari e a breve riceverai una e-mail con un link da convalidare per inviare i tuoi dati.
Affiliato
Immobiliare Dama Sas
Via Roma, 22/C 10060 None (TO)

Il nostro staff


  • Margherita Benetti
    Coordinatrice

  • Daniele Galluzzo
    Affiliato

  • Marika Ramaglia
    Affiliata
Via Roma, 22/C 10060 None (TO)
Zona: None-Airasca-Castagnole Piemonte
Mostra su mappa
Orari: Dal lunedì al venerdì 9.00 - 12.30 - 15.00 - 19.30; sabato 9.00 -17.00 orario continuato
Affiliato
Immobiliare Dama Sas
Via Roma, 22/C 10060 None (TO)

2025 Tecnocasa Franchising S.p.A. - P. IVA 08365160152 - Via Monte Bianco 60/A 20089 Rozzano (MI). Ogni agenzia ha un proprio titolare ed è autonoma. Privacy policy | Policy utilizzo | Cookie policy