Trilocale in vendita

Castagnole Piemonte, Largo dietro castello
€ 79.000
3 locali 3 locali
90 Mq 90 Mq
1 bagno 1 bagno

Trilocale in vendita

Castagnole Piemonte, Largo dietro castello

Descrizione annuncio

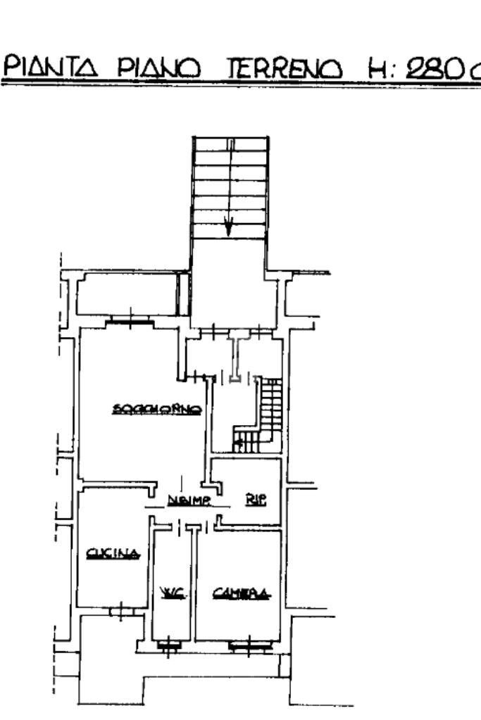
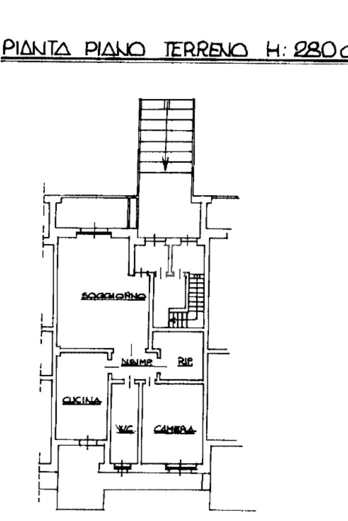
Alloggio in Contesto rtesidenziale nato nei primi anni '80 con curato giardino piantumato condomininiale. Posto al piano terra con accesso tramite scala esterna dal vialetto pedonale, l'appartamento presenta un grande spazio luminoso ad uso soggiorno, con cucina separata. e una camera grande con finestra. Gli spazi potrebbero essere risistemati per creare un soggiorno living con zona cottura e recuperare così una seconda cameretta. Sono presenti la cantina e il box di pertinenza. La soluzione è già libera.

Mostra tutto

Nelle vicinanze

Ricariche auto elettriche Ricariche auto elettriche
Castagnole Piemonte Martiri Libertà | EnelX
270 m
Municipio di Castagnole | EnelX
300 m
Castagnole Trento | EnelX
380 m
Castagnole Paschetto | EnelX
650 m
Farmacia Farmacia
Farmacia
290 m
Mostra tutto

Caratteristiche

Rif.:
61180731
Piano:
1 di 2 (Piano terra)
Box:
1
Camere da letto:
1
Arredamento:
Assente
Condizionamento:
Assente
Mostra tutto
Prezzo Prezzo
€ 79.000
Rata mutuo Rata mutuo
€ 375 / mese
Spese annue Spese annue
€ 1.800
Proponi il tuo prezzoProponi il tuo prezzo

Classe Energetica

E
E
E
E
E
E
E
E
E
EP globale non rinnovabile:
221.57 kW h/m² anno
EP globale rinnovabile:
1.28 kW h/m² anno
EP invernale del fabbricato:
EP estiva del fabbricato:
Anno di costruzione:
1978
Riscaldamento:
Centralizzato
Tipo impianto:
A radiatori
Tipo alimentazione:
Metano

Ti interessa visionare l'immobile?

Fissa un appuntamento  Fissa un appuntamento

Richiedi informazioni

Clicca su Leggi per aprire l'informativa
* Questi campi sono obbligatori

Calcola il tuo mutuo

Semplice e senza impegno
Anticipo

( % )
Mutuo

( % )

pochi semplici passi

inserisci i tuoi dati
Questionario completato
Grazie per aver richiesto un appuntamento senza impegno con un nostro Consulente del Credito e Assicurativo.

Hai inserito correttamente tutti i dati necessari e a breve riceverai una e-mail con un link da convalidare per inviare i tuoi dati.
Affiliato
Immobiliare Dama Sas
Via Roma, 22/C 10060 None (TO)

Il nostro staff


  • Margherita Benetti
    Coordinatrice

  • Daniele Galluzzo
    Affiliato

  • Marika Ramaglia
    Affiliata
Via Roma, 22/C 10060 None (TO)
Zona: None-Airasca-Castagnole Piemonte
Mostra su mappa
Orari: Dal lunedì al venerdì 9.00 - 12.30 - 15.00 - 19.30; sabato 9.00 -17.00 orario continuato
Affiliato
Immobiliare Dama Sas
Via Roma, 22/C 10060 None (TO)

2026 Tecnocasa Franchising S.p.A. - P. IVA 08365160152 - Via Monte Bianco 60/A 20089 Rozzano (MI). Ogni agenzia ha un proprio titolare ed è autonoma. Privacy policy | Policy utilizzo | Cookie policy