Trilocale in vendita

None, Via Cerutti
€ 95.000
3 locali 3 locali
78 Mq 78 Mq
1 bagno 1 bagno

Trilocale in vendita

None, Via Cerutti

Descrizione annuncio

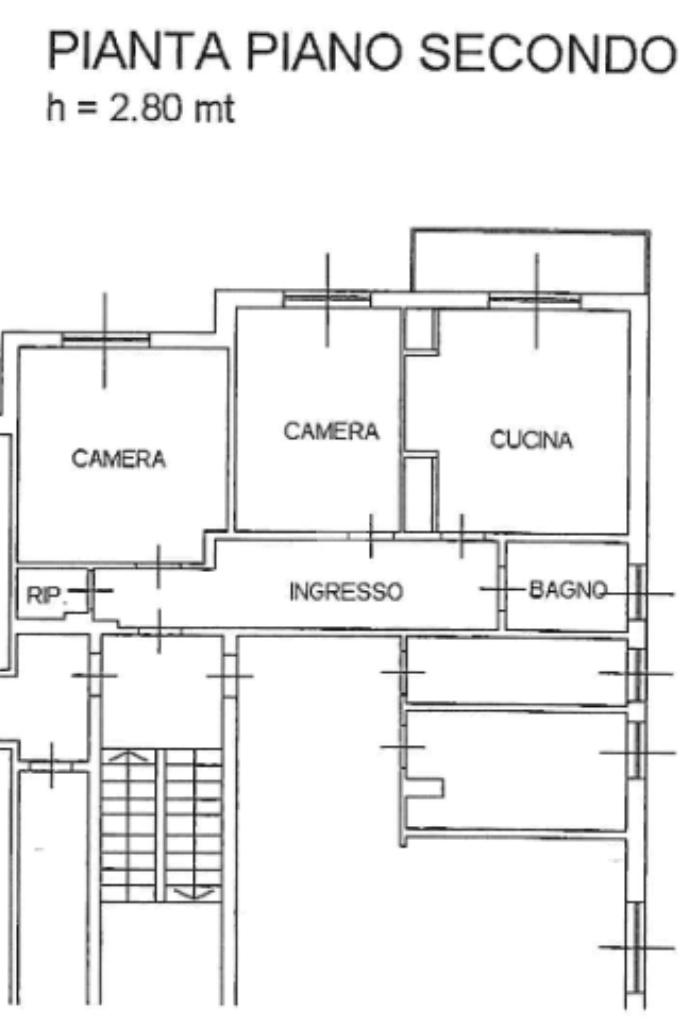
L’appartamento si trova al secondo e ultimo piano di una palazzina con poche spese condominiali. Gli ambienti sono luminosi e accoglienti, grazie anche alla ristrutturazione effettuata nel 2019, che ha saputo valorizzare gli spazi con uno stile moderno e funzionale.
L’ingresso si apre su un ampio ambiente living, ben organizzato, dove cucina e soggiorno dialogano in modo armonioso creando uno spazio ideale sia per la vita quotidiana sia per momenti di convivialità. Dalla zona cucina si accede al balcone, un piacevole sfogo esterno che dona luce e ariosità all’ambiente.
La zona notte ospita una camera da letto confortevole e ben proporzionata, mentre il bagno, elegante e pratico, è dotato di doccia. Il riscaldamento è autonomo, garantendo una gestione efficiente dei consumi.
Completano la proprietà una cantina di generose dimensioni e un box auto incluso, elementi che aggiungono comodità e valore all’abitazione. L’immobile è in classe energetica C, una soluzione ideale per chi cerca una casa pronta da vivere, luminosa e con spazi ben studiati.

Mostra tutto

Nelle vicinanze

Trasporto pubblico Trasporto pubblico
None
None
650 m
None
None
1,2 Km
Trasporto pubblico
1,3 Km
Ricariche auto elettriche Ricariche auto elettriche
None Via Beinasco | EnelX
390 m
None Palazzetto dello sport | EnelX
590 m
Scuole Scuole
Scuole
290 m
Farmacia Farmacia
Farmacia
310 m
Supermercati Supermercati
Mercatò
430 m
Supermercati
470 m
IN's
1,3 Km
Bar Bar
Bar
400 m
Ristoranti Ristoranti
L'osteria
330 m
Agriturismo Cascina Ollera di Sopra
2,5 Km
Mostra tutto

Caratteristiche

Rif.:
61160576
Piano:
2 di 3 (ultimo Piano)
Box:
1
Balconi:
1
Camere da letto:
1
Arredamento:
Assente
Mostra tutto
Prezzo Prezzo
€ 95.000
Rata mutuo Rata mutuo
€ 448 / mese
Spese annue Spese annue
€ 700
Proponi il tuo prezzoProponi il tuo prezzo

Classe Energetica

C
C
C
C
C
C
C
C
C
EP globale non rinnovabile:
193.18 kW h/m² anno
EP globale rinnovabile:
1.47 kW h/m² anno
EP invernale del fabbricato:
EP estiva del fabbricato:
Anno di costruzione:
1974
Riscaldamento:
Autonomo
Tipo impianto:
A radiatori
Tipo alimentazione:
Metano

Ti interessa visionare l'immobile?

Fissa un appuntamento  Fissa un appuntamento

Richiedi informazioni

Clicca su Leggi per aprire l'informativa
* Questi campi sono obbligatori

Calcola il tuo mutuo

Semplice e senza impegno
Anticipo

( % )
Mutuo

( % )

pochi semplici passi

inserisci i tuoi dati
Questionario completato
Grazie per aver richiesto un appuntamento senza impegno con un nostro Consulente del Credito e Assicurativo.

Hai inserito correttamente tutti i dati necessari e a breve riceverai una e-mail con un link da convalidare per inviare i tuoi dati.
Affiliato
Immobiliare Dama Sas
Via Roma, 22/C 10060 None (TO)

Il nostro staff


  • Margherita Benetti
    Coordinatrice

  • Daniele Galluzzo
    Affiliato

  • Marika Ramaglia
    Affiliata
Via Roma, 22/C 10060 None (TO)
Zona: None-Airasca-Castagnole Piemonte
Mostra su mappa
Orari: Dal lunedì al venerdì 9.00 - 12.30 - 15.00 - 19.30; sabato 9.00 -17.00 orario continuato
Affiliato
Immobiliare Dama Sas
Via Roma, 22/C 10060 None (TO)

2026 Tecnocasa Franchising S.p.A. - P. IVA 08365160152 - Via Monte Bianco 60/A 20089 Rozzano (MI). Ogni agenzia ha un proprio titolare ed è autonoma. Privacy policy | Policy utilizzo | Cookie policy