Casa semindipendente in vendita

None, Via scalenghe
€ 290.000
6 locali 6 locali
200 Mq 200 Mq
2 bagni 2 bagni

Casa semindipendente in vendita

None, Via scalenghe

Descrizione annuncio

NONE Spaziosa abitazione nel pieno centro del paese, a pochi passi dalla via centrale. Si presta molto bene ad essere condivisa per abitazione bifamiliare, oppure come abitazione unica per famiglia numerosa. All'esterno il cortile ospita un locale lavanderia, un basso fabbricato ad uso autorimessa in parte e con spazi al piano superiore idelai per hobby o laboratorio.

Mostra tutto

Nelle vicinanze

Trasporto pubblico Trasporto pubblico
None
None
640 m
None
None
620 m
Trasporto pubblico
660 m
Ricariche auto elettriche Ricariche auto elettriche
None Palazzetto dello sport | EnelX
420 m
None Via Beinasco | EnelX
820 m
Scuole Scuole
Scuole
320 m
Farmacia Farmacia
Farmacia
150 m
Supermercati Supermercati
Supermercati
270 m
IN's
650 m
Mercatò
900 m
Bar Bar
Bar
230 m
Ristoranti Ristoranti
L'osteria
290 m
Agriturismo Cascina Ollera di Sopra
2,1 Km
Primavera Volvera
2,6 Km
Mostra tutto

Caratteristiche

Rif.:
61143524
Piano:
1 di 2 (Piano su più livelli)
Box:
1
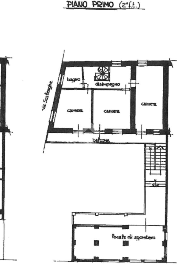
Balconi:
1
Terrazzi:
1
Camere da letto:
4
Mostra tutto
Prezzo Prezzo
€ 290.000
Rata mutuo Rata mutuo
€ 1.378 / mese
Spese annue Spese annue
€ 0
Proponi il tuo prezzoProponi il tuo prezzo

Classe Energetica

G
G
G
G
G
G
G
G
G
EP globale non rinnovabile:
241.64 kW h/m² anno
EP globale rinnovabile:
0.11 kW h/m² anno
EP invernale del fabbricato:
EP estiva del fabbricato:
Anno di costruzione:
1950
Riscaldamento:
Autonomo
Tipo impianto:
A radiatori
Tipo alimentazione:
Metano

Ti interessa visionare l'immobile?

Fissa un appuntamento  Fissa un appuntamento

Richiedi informazioni

Clicca su Leggi per aprire l'informativa
* Questi campi sono obbligatori

Calcola il tuo mutuo

Semplice e senza impegno
Anticipo

( % )
Mutuo

( % )

pochi semplici passi

inserisci i tuoi dati
Questionario completato
Grazie per aver richiesto un appuntamento senza impegno con un nostro Consulente del Credito e Assicurativo.

Hai inserito correttamente tutti i dati necessari e a breve riceverai una e-mail con un link da convalidare per inviare i tuoi dati.
Affiliato
Immobiliare Dama Sas
Via Roma, 22/C 10060 None (TO)

Il nostro staff


  • Margherita Benetti
    Coordinatrice

  • Daniele Galluzzo
    Affiliato

  • Marika Ramaglia
    Affiliata
Via Roma, 22/C 10060 None (TO)
Zona: None-Airasca-Castagnole Piemonte
Mostra su mappa
Orari: Dal lunedì al venerdì 9.00 - 12.30 - 15.00 - 19.30; sabato 9.00 -17.00 orario continuato
Affiliato
Immobiliare Dama Sas
Via Roma, 22/C 10060 None (TO)

2026 Tecnocasa Franchising S.p.A. - P. IVA 08365160152 - Via Monte Bianco 60/A 20089 Rozzano (MI). Ogni agenzia ha un proprio titolare ed è autonoma. Privacy policy | Policy utilizzo | Cookie policy