Villa singola in vendita

None, Via rubiano
Informazioni in agenzia
8 locali 8 locali
275 Mq 275 Mq
3 bagni 3 bagni

Villa singola in vendita

None, Via rubiano

Descrizione annuncio

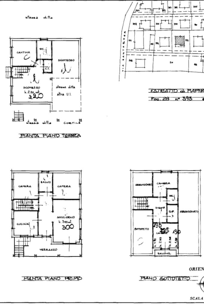
Costruita nel 1970, questa elegante villa offre spazi generosi e una distribuzione interna ideale per soddisfare ogni esigenza abitativa. Situata in una tranquilla zona residenziale, la proprietà combina la comodità della vicinanza ai principali servizi del comune con la privacy e la serenità tipiche delle abitazioni indipendenti.

L'ingresso è arricchito da un ampio terrazzo coperto, che introduce a una zona giorno accogliente e ben organizzata. Qui troviamo un luminoso soggiorno di generose dimensioni e una cucina abitabile. La zona notte, situata sullo stesso piano, comprende due camere da letto spaziose e un bagno.

Il piano superiore, mansardato e completamente abitabile, ospita altre due camere da letto, una delle quali dotata di un raro balcone, e un secondo bagno.

Il piano interrato è un ambiente versatile, composto da un ampio locale di sgombero utilizzabile anche come box auto, una lavanderia e un locale stireria, ideali per chi cerca funzionalità e comodità.

Esternamente, la villa è adornata da un ampio giardino privato, perfetto per rilassarsi all'aria aperta o organizzare attività ricreative. Il design classico della proprietà si integra armoniosamente con l'ambiente circostante, regalando un'atmosfera calda e familiare.

Questa villa rappresenta una soluzione abitativa unica, ideale per chi cerca comfort, spazi ampi e tranquillità senza rinunciare ai vantaggi della vicinanza ai servizi.

Mostra tutto

Nelle vicinanze

Trasporto pubblico Trasporto pubblico
None
None
670 m
None
None
380 m
Trasporto pubblico
430 m
Ricariche auto elettriche Ricariche auto elettriche
None Palazzetto dello sport | EnelX
660 m
None Via Beinasco | EnelX
980 m
Scuole Scuole
Scuole
590 m
Farmacia Farmacia
Farmacia
360 m
Supermercati Supermercati
IN's
470 m
Supermercati
470 m
Mercatò
1,1 Km
Bar Bar
Bar
440 m
Ristoranti Ristoranti
L'osteria
510 m
Agriturismo Cascina Ollera di Sopra
2,1 Km
Primavera Volvera
2,4 Km
Mostra tutto

Caratteristiche

Rif.:
61004832
Piano:
1 di 3 (Piano su più livelli)
Box:
1
Balconi:
1
Terrazzi:
1
Camere da letto:
4
Mostra tutto
Prezzo Prezzo
Informazioni in agenzia
Spese annue Spese annue
€ 0
Proponi il tuo prezzoProponi il tuo prezzo

Classe Energetica

G
G
G
G
G
G
G
G
G
EP globale non rinnovabile:
349.78 kW h/m² anno
EP globale rinnovabile:
8.64 kW h/m² anno
EP invernale del fabbricato:
EP estiva del fabbricato:
Anno di costruzione:
1970
Riscaldamento:
Autonomo
Tipo impianto:
A radiatori
Tipo alimentazione:
Gasolio

Ti interessa visionare l'immobile?

Fissa un appuntamento  Fissa un appuntamento

Richiedi informazioni

Clicca su Leggi per aprire l'informativa
* Questi campi sono obbligatori
Affiliato
Immobiliare Dama Sas
Via Roma, 22/C 10060 None (TO)

Il nostro staff


  • Margherita Benetti
    Coordinatrice

  • Daniele Galluzzo
    Affiliato

  • Marika Ramaglia
    Affiliata
Via Roma, 22/C 10060 None (TO)
Zona: None-Airasca-Castagnole Piemonte
Mostra su mappa
Orari: Dal lunedì al venerdì 9.00 - 12.30 - 15.00 - 19.30; sabato 9.00 -17.00 orario continuato
Affiliato
Immobiliare Dama Sas
Via Roma, 22/C 10060 None (TO)

2025 Tecnocasa Franchising S.p.A. - P. IVA 08365160152 - Via Monte Bianco 60/A 20089 Rozzano (MI). Ogni agenzia ha un proprio titolare ed è autonoma. Privacy policy | Policy utilizzo | Cookie policy