Villa singola in vendita

None, Via pinerolo
€ 265.000
8 locali 8 locali
190 Mq 190 Mq
2 bagni 2 bagni

Villa singola in vendita

None, Via pinerolo

Descrizione annuncio

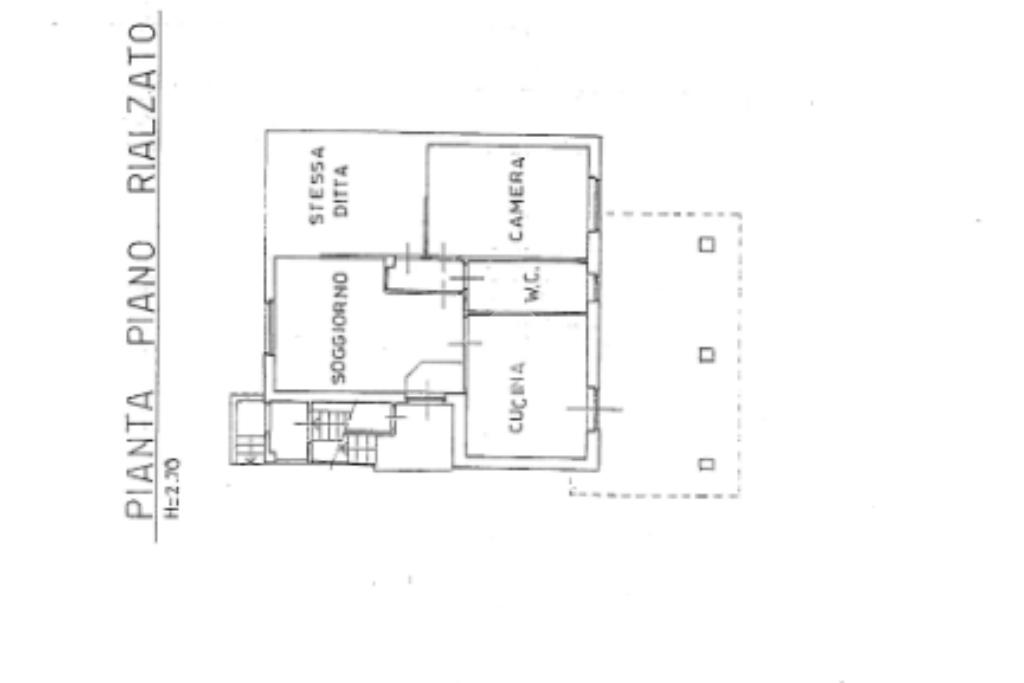
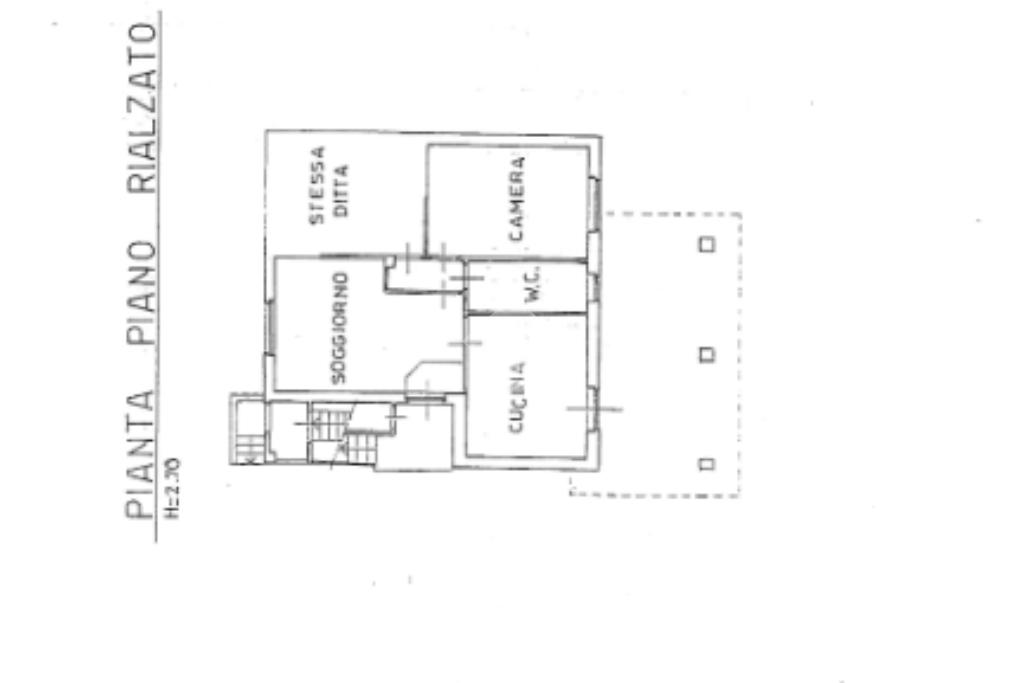
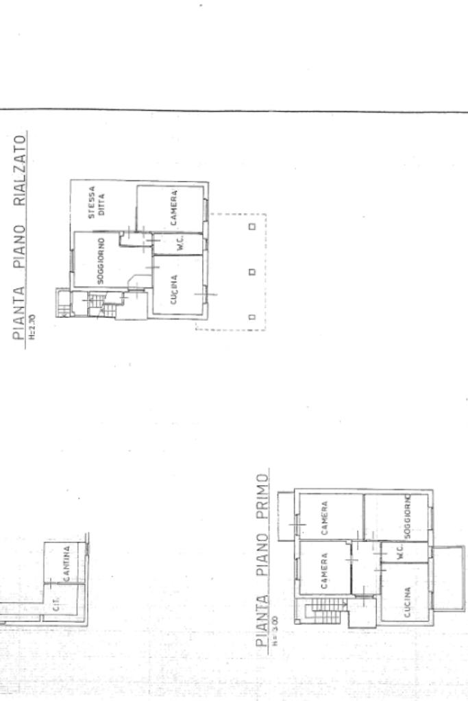
L'immobile con tipica struttura degli anni '70, si preserva in ottimo stato sia interno che esterno, grazie alla continua manuntenzione da parte della proprietà. Sviluppato su due piani abitabili, può essere facilmente utilizzabile come casa bifamiliare, infatti ogni piano ha un accesso indipendente tramite due portoni e una scala esterna, garantendo la massima autonomia per entrambe le unità. Al piano terra, oltre alla cucina e soggiorno living, con accesso diretto su un ampio portico adiacente al giardino, c'è una camera da letto e un bagno, ideale per offrire una zona notte separata. Il piano superiore, caratterizzato da un ampio affaccio sul terrazzo dalla cucina, comprende anche un soggiorno, due camere da letto e un bagno, tutti spazi luminosi e ben distribuiti. La villa è circondata da un giardino di oltre mille mq, suddiviso tra una zona verde e un orto, perfetto per chi ama godere di ampi spazi esterni. La proprietà è completata da un box auto e una cantina di ampie dimensioni. Gode della privacy di essere libera sui quattro lati, in una posizione tranquilla e indipendente.

Mostra tutto

Nelle vicinanze

Trasporto pubblico Trasporto pubblico
None
None
780 m
None
None
100 m
Candiolo, direz. Torino
Candiolo, direz. Torino
1,4 Km
Ricariche auto elettriche Ricariche auto elettriche
None Via Beinasco | EnelX
890 m
None Palazzetto dello sport | EnelX
1,7 Km
Scuole Scuole
Scuole
1,1 Km
Farmacia Farmacia
Farmacia
1,2 Km
Supermercati Supermercati
Mercatò
890 m
Supermercati
1,5 Km
IN's
1,9 Km
Bar Bar
Bar
1,2 Km
Ristoranti Ristoranti
L'osteria
1,2 Km
Primavera Volvera
2,4 Km
Mostra tutto

Caratteristiche

Rif.:
61023019
Piano:
Su più livelli di 2
Totale piani:
2
Box:
1
Balconi:
2
Terrazzi:
1
Mostra tutto
Prezzo Prezzo
€ 265.000
Rata mutuo Rata mutuo
€ 1.250 / mese
Spese annue Spese annue
€ 0
Proponi il tuo prezzoProponi il tuo prezzo
Immobile valutato con T·Valuta

Classe Energetica

E
E
E
E
E
E
E
E
E
EP globale non rinnovabile:
244.02 kW h/m² anno
EP globale rinnovabile:
3.18 kW h/m² anno
EP invernale del fabbricato:
EP estiva del fabbricato:
Anno di costruzione:
1968
Riscaldamento:
Autonomo
Tipo impianto:
A radiatori
Tipo alimentazione:
Metano

Ti interessa visionare l'immobile?

Fissa un appuntamento  Fissa un appuntamento

Richiedi informazioni

Clicca su Leggi per aprire l'informativa
* Questi campi sono obbligatori

Calcola il tuo mutuo

Semplice e senza impegno
Anticipo

( % )
Mutuo

( % )

pochi semplici passi

inserisci i tuoi dati
Questionario completato
Grazie per aver richiesto un appuntamento senza impegno con un nostro Consulente del Credito e Assicurativo.

Hai inserito correttamente tutti i dati necessari e a breve riceverai una e-mail con un link da convalidare per inviare i tuoi dati.
Affiliato
Immobiliare Dama Sas
Via Roma, 22/C 10060 None (TO)

Il nostro staff


  • Margherita Benetti
    Coordinatrice

  • Daniele Galluzzo
    Affiliato

  • Marika Ramaglia
    Affiliata
Via Roma, 22/C 10060 None (TO)
Zona: None-Airasca-Castagnole Piemonte
Mostra su mappa
Orari: Dal lunedì al venerdì 9.00 - 12.30 - 15.00 - 19.30; sabato 9.00 -17.00 orario continuato
Affiliato
Immobiliare Dama Sas
Via Roma, 22/C 10060 None (TO)

2025 Tecnocasa Franchising S.p.A. - P. IVA 08365160152 - Via Monte Bianco 60/A 20089 Rozzano (MI). Ogni agenzia ha un proprio titolare ed è autonoma. Privacy policy | Policy utilizzo | Cookie policy